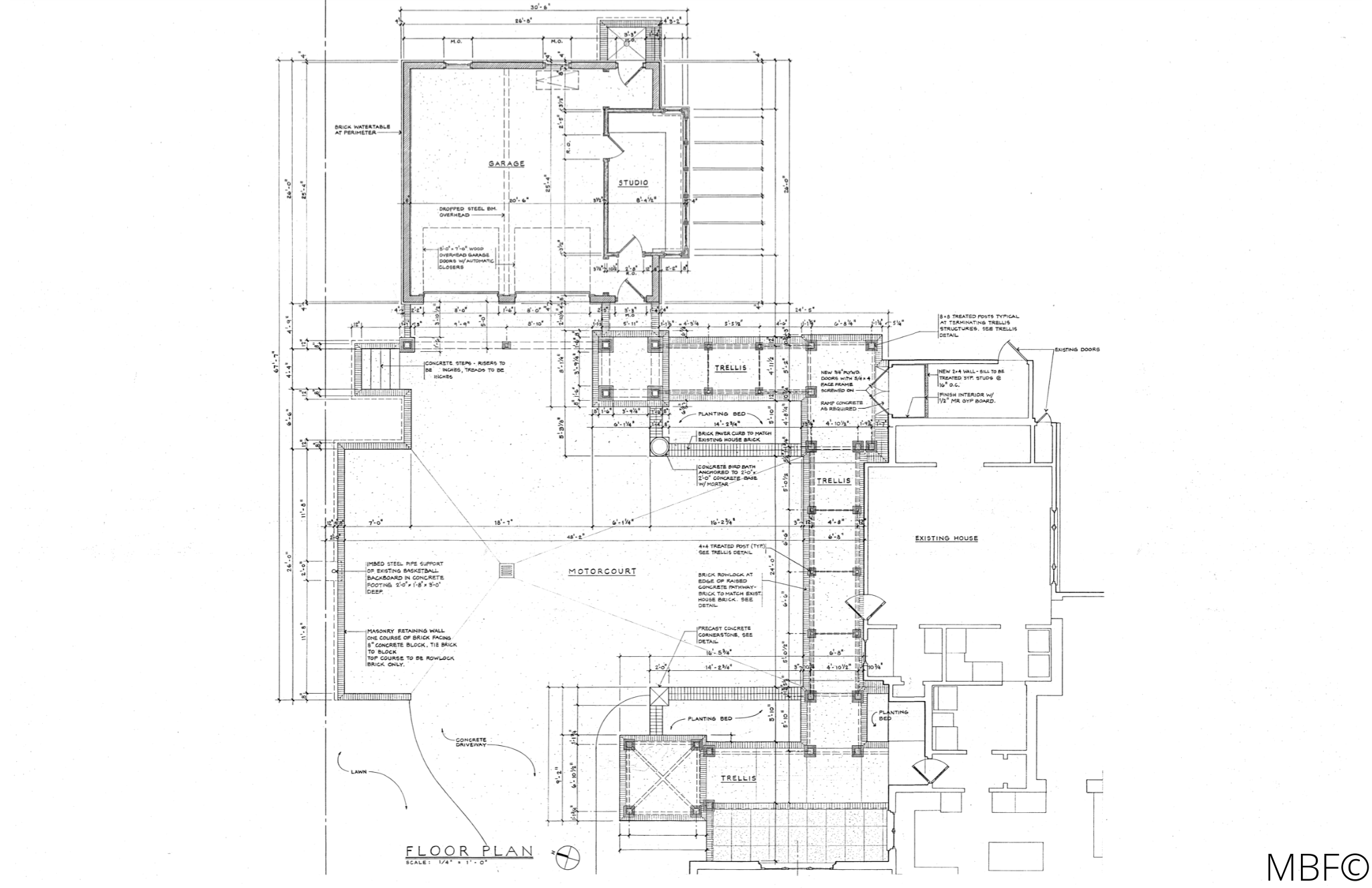
Garage, Flower Workshop and Trellised Motor Court View fullsize View fullsize View fullsize View fullsize View fullsize Back to REMODELING & ADDITIONS